monroe


denver, co
completed 2024
residential // addition+remodel
form
builtxdesign
hone studio
vonderhaus
nakamoto forestry
jess blackwell photography

location
status
type
team

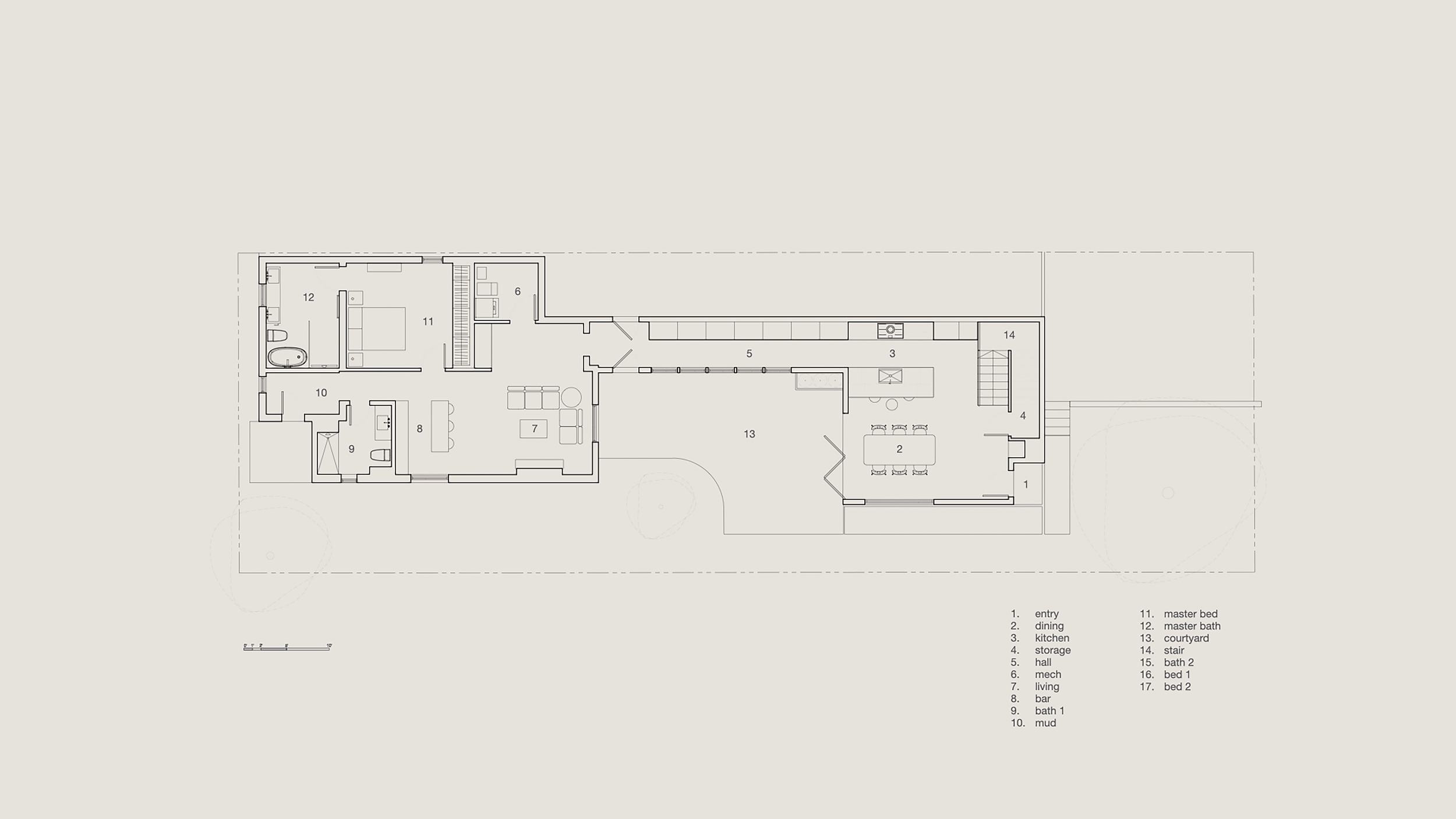
Old and new converge as a minimalist addition extends from the historic home, together shaping a private courtyard in a busy urban setting. The design balances preservation and innovation, honoring the character of the original structure while introducing a minimalist, modern counterpart.