winona


location
status
type
team

denver, co
under construction
residential // new build
form
tuck development
garret brown design
marvin
lunawood


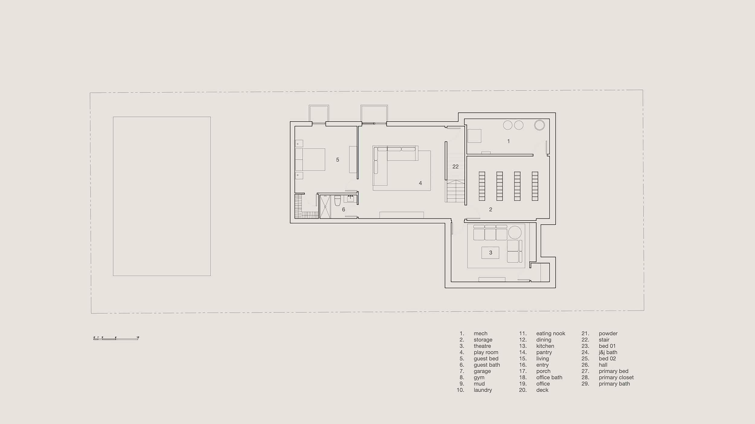
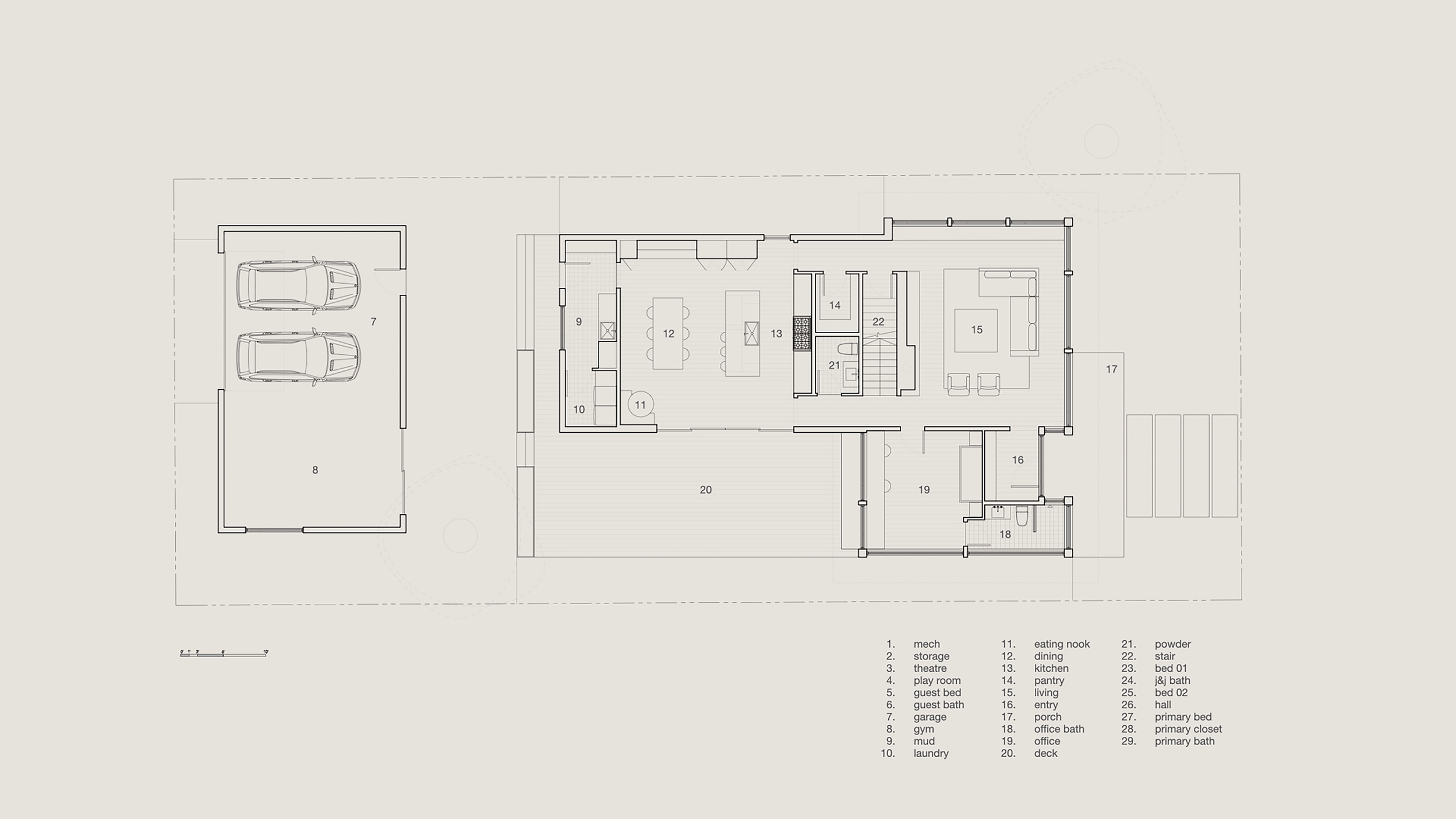
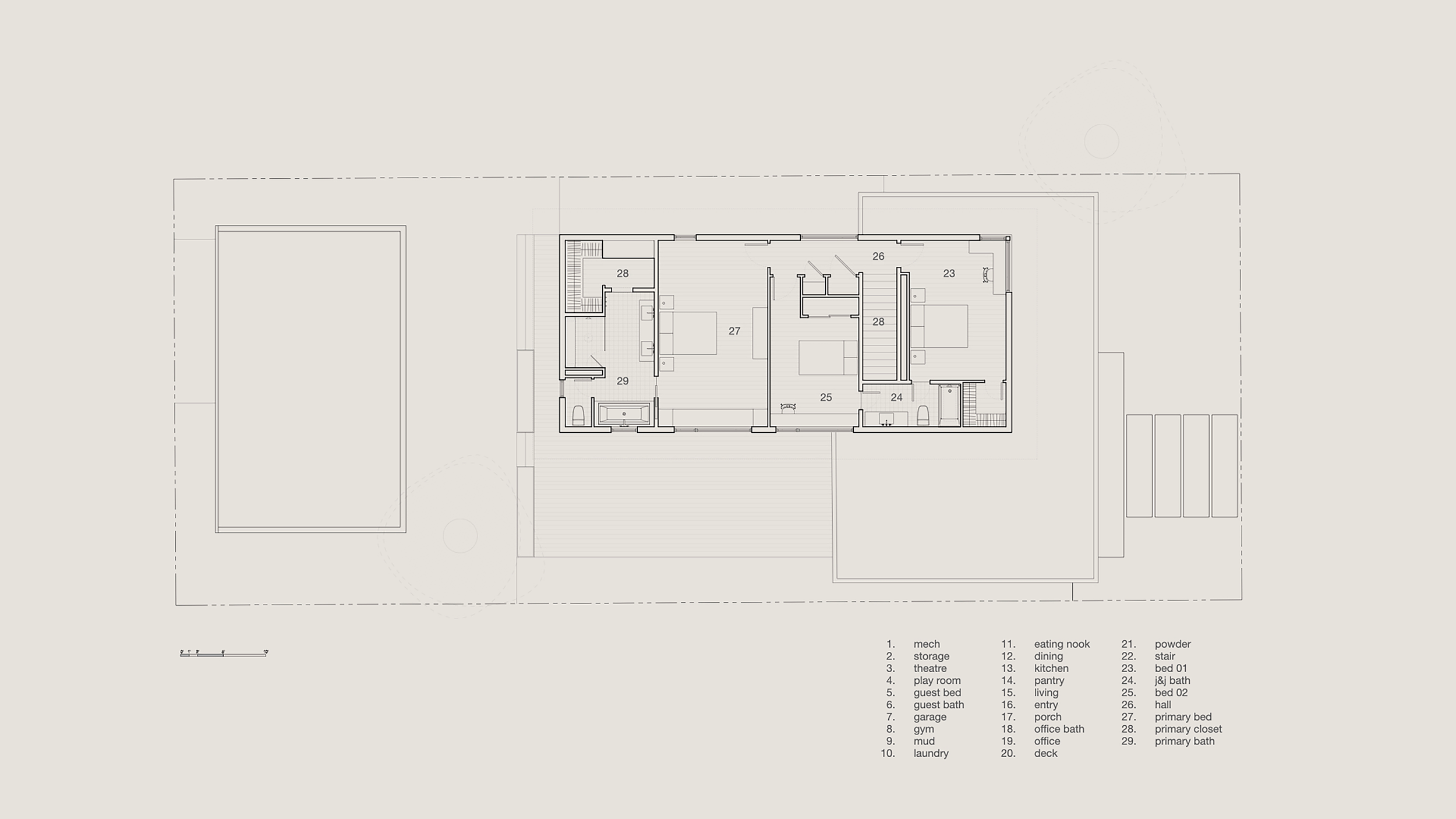
A new residence in Denver’s Berkeley neighborhood, organized around the preservation of a mature tree. The home’s two volumes create a courtyard providing private outdoor space. The architecture pays homage to mid century modern principles through simple forms, strong indoor-outdoor living, and an emphasis on natural light.

The exterior palette of brick, wood, and glass gives the home a grounded, timeless presence. Inside, a warm and tactile material palette softens the architecture and creates calm, layered interiors. Finishes of white oak, walnut, travertine, and soapstone can be found throughout the home.